Strona korzysta z plików cookies w celu realizacji usług - korzystanie z serwisu oznacza ich akceptację. Możesz to zmienić w ustawieniach swojej przeglądarki.
CaloscGora

Ogłoszenia Lublin

Mieszkania, Praca, Ślub, Usługi

Lubliniak.com.pl - witamy

Nieruchomości - woj. Lubelskie

Dodano:2010-04-11
Cena: 133000 zł
Miejsce: woj. Lubelskie

Przy kontakcie powołaj się na serwis Lubliniak.com.pl

Telefon:665777014

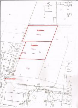
Opole Lubelskie, działka budowlana 889 m, centrum

Sprzedam działkę budowlaną o powierzchni 0,0889 ha w centrum Opola Lubelskiego – powiatowego miasta w woj. Lubelskim. Działka jest doskonale zlokalizowana. Do ścisłego centrum miasta jest ok. 300 m!. Jednocześnie na działce jest spokojnie i cicho. Nie dochodzą odgłosy miasta. Działka leży na końcu ul. Krasickiego. Nawierzchnia ul. Krasickiego wykonana jest z kostki brukowej. Istnieją plany przedłużenia ulicy i połączenia jej z ul. Pocztową. Działka położona jest w kompleksie 3 działek. Dojazd do każdej z nich drogą wewnętrzną o szerokości 5 m. Wokół zabudowania jednorodzinne i ogródki działkowe. Wszystkie media. Na działce znajduje się przyłącze kanalizacyjne, w drodze obok działki gaz, elektryczność, woda. Posiadam uzgodnienia od dostawców mediów. Istnieje możliwość zakupu dwóch sąsiednich działek, wówczas można przeznaczyć je pod bliźniak lub szeregowce. Cena: 133.000 zł. Kontakt: Tel. kom.: 665 777 014; e-mail: krzysztof@limba.biz


Kliknij by powiększyć


Reklama
Wypożyczalnia samochodów Lublin
Serwisy Partnerskie
Pomocnik studenta Nowysącz.biz Usługi Lublin - Twoj-Lublin.pl
 

Ogłoszenia Lublin

 
CaloscDol