Strona korzysta z plików cookies w celu realizacji usług - korzystanie z serwisu oznacza ich akceptację. Możesz to zmienić w ustawieniach swojej przeglądarki.
CaloscGora

Ogłoszenia Lublin

Mieszkania, Praca, Ślub, Usługi

Lubliniak.com.pl - witamy

Nieruchomości - Lublin i okolice

Dodano:2016-09-07
Cena: 166600 zł
Miejsce: Lublin i okolice

Przy kontakcie powołaj się na serwis Lubliniak.com.pl

Telefon:48601827273

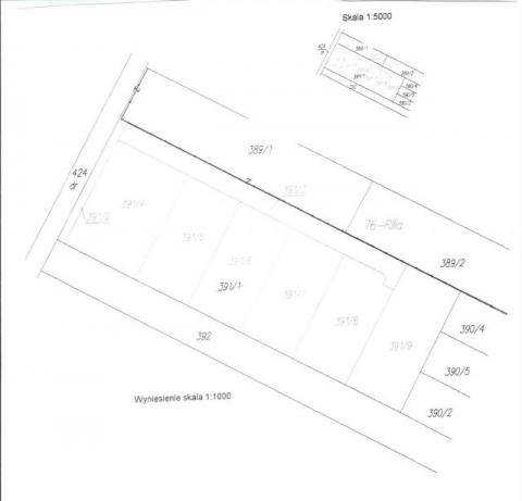
Sprzedam działki budowlane w Kalinówce gm. Głusk

Sprzedam bezpośrednio 6 działek budowlanych w miejscowości Kalinówka pow. Głusk (między Lublinem a Świdnikiem).
Działki:
1. 391/4 - 1600 m kw. - cena 140 zł m kw. = 224 000 zł
2. 391/5 - 1190 m kw. - cena 140 zł m kw. = 166 600 zł
3. 391/6 - 1190 m kw. - cena 140 zł m kw. = 166 600 zł
4. 391/7 - 1190 m kw. - cena 140 zł m kw. = 166 600 zł
5. 391/8 - 1190 m kw. - cena 140 zł m kw. = 166 600 zł
6. 391/9 - 1436 m kw. - cena 140 zł m kw. = 201 000 zł

Media: prąd, gaz, woda.

Cena do negocjacji. OFERTA PRYWATNA.


Kliknij by powiększyć


Reklama
Wypożyczalnia samochodów Lublin
Serwisy Partnerskie
Pomocnik studenta Nowysącz.biz Usługi Lublin - Twoj-Lublin.pl
 

Ogłoszenia Lublin

 
CaloscDol